✔Wykończone pod klucz narożne Zakrzówek! – 1 250 000 zł

✔Wykończone pod klucz narożne Zakrzówek! – 1 250 000 zł

Kraków

1 250 000 zł

Podstawowe informacje

Typ: Mieszkanie
Piętro: 1
Rynek: Wtórny

Dodatkowe dane

Ulica: ul. Krokusowa

Opis nieruchomości

Oferta na wyłączność - TYLKO U NAS!

ul. Krokusowa - nieopodal  trasa Łagiewnicka, oraz ul. Zakopiańska, Zakrzówek.

VibeHome prezentuje mieszkanie z wysokiej półki, usytuowane w nowej inwestycji
Safrano by Cordia. 
Cechuje się eleganckim stylem i wysokim standardem wykończenia.

Mieszaknie idealnie sprawdzi się dla osób, którzy cenią sobie wysoki standard,
bliskość zieleni, jak również świetne połączenie z całym Krakowem. 

 ATUTY NIERUCHOMOŚCI:
Świetna lokalizacja w sąsiedztwie rekreacyjno-spacerowego Zakrzówka
Nowoczesne osiedle  - ponadczasowa elewacja z elementami z cegły klinkierowej,
nawiewniki okienne z filtrami antysmogowymi i wentylacją higrosterowalną. 
Ekspozycja południowa, wschodnia i północna zapewniająca obfitość naturalnego światła
Bardzo dobry rozkład pomieszczeń oraz stylowe i nowoczesne wykończenie, które podkreśla
   charakter mieszkania
Ogrzewanie centralne gazowe 
Miejsce postojowe w garażu podziemnym
Eleganckie wyposażenie i wnętrze, zapewniające funkcjonalność i estetykę.
Bliskość Centrum Handlowego Zakopiańka, Solvay Park, Kampus UJ i wiele innych
✔ Przestronny i zagospodarowany balkon z ekspozycją południową.
✔pom. gospodarcze/garderoba
✔ plac zabaw, oraz w niedalekiej odłegości boiska do piłki nożnej , siatkówki etc.

✅ NIERUCHOMOŚĆ:
Ustawne i nowoczesne mieszkanie z pięknym wykończeniem w
kolorze orzecha, który dodaje domowego klimatu. Komfort
użytkowania podnosi nam zamontowana klimatyzacja,
oraz duży balkon. W mieszkaniu jest zamontowana stacja
uzdatniania wody.

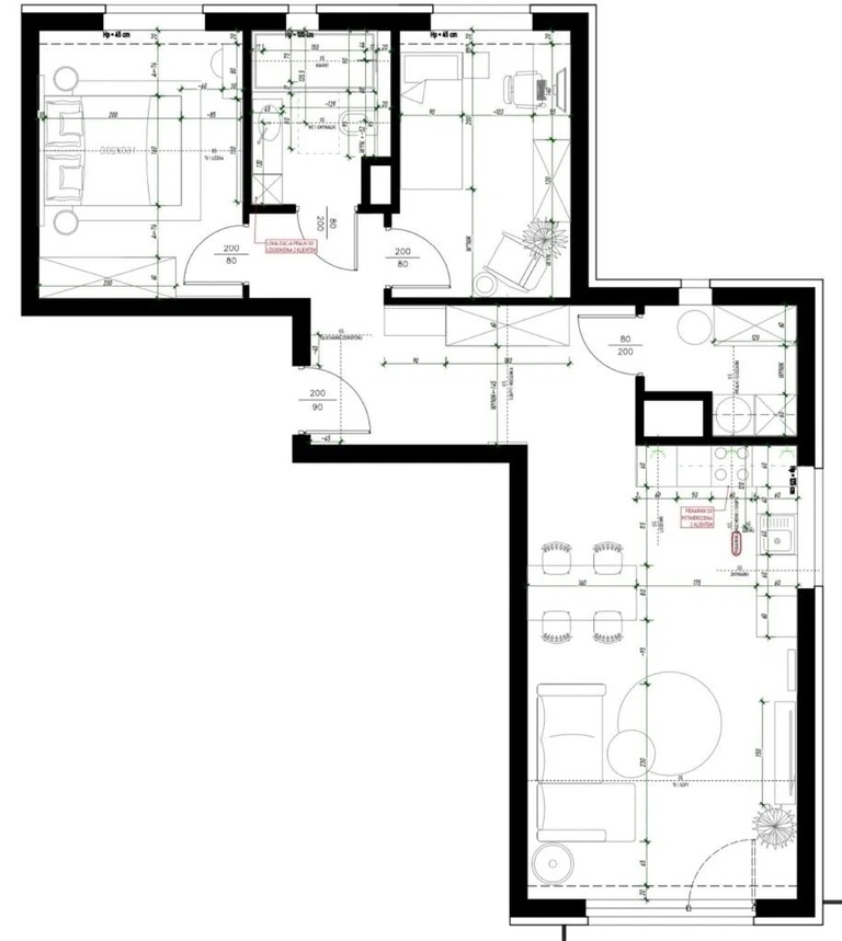
*pokój dzienny z aneksem kuchennym: 26,02 m2
*przedpokój: 12,06 m2
*sypialnia: 11,38 m2
*sypialnia/ biuro: 9,75 m2
*łazienka: 4,75 m2
*pom. gospodarcze/garderoba/możliwość przerobienia na WC: 3,50 m2

 KOSZTY:
Cena nieruchomości: 1 250  000 PLN
Czynsz administracyjny: ok. 600 PLN
Miejsce postojowe w garażu podziemnym: 80 000 PLN

KW: Pełna własność.

 LOKALIZACJA:
Apartament znajduje się na 1 piętrze  z 2024 roku, zlokalizowanego w bezpiecznym
i monitorowanym otoczeniu. Doskonała infrastruktura: szkoły, sklepy, żłobki,
restauracje, apteki oraz centra medyczne w najbliższej okolicy. Łatwy dostęp '
do Centrum Handlowego Bonarka (6 min samochodem), Zakrzówek (6 min).
Nowo wybudowana trasa Łagiewnicka, pozwala na szybki dojazd  na południe
Krakowa , oraz z Centrum miasta + Zakopianka.

✅ KONTAKT:
Nie zwlekaj, skontaktuj się z nami i umów na prezentację! Nasi eksperci finansowi są gotowi pomóc Ci w realizacji tego marzenia !

BIURO NIERUCHOMOŚCI VIBEHOME
Aleksandra Syktus
☎ +48 453 411 355
✉️ kontakt@vibehome.com.pl