✔ Pod klucz | Nowe Osiedle | 3M | Bądź Pierwszy! – 948 000 zł

✔ Pod klucz | Nowe Osiedle | 3M | Bądź Pierwszy! – 948 000 zł

Kraków

948 000 zł

Podstawowe informacje

Typ: Mieszkanie
Piętro: 1
Rynek: Pierwotny

Dodatkowe dane

Opis nieruchomości

Мы также говорим на русском!

ul. Henryka i Karola Czeczów, Bieżanów-Prokocim, Kraków.
Obok ulica: Sucharskiego, Kokotowska, Półłanki

✅ ATUTY NIERUCHOMOŚCI:
Piętro I – wygoda i bezpieczeństwo
✔ 3 starannie wykończone pokoje
✔ Łazienka z prysznicem
✔ Staranne i szykowne wykończenie
✔ Wyposażenie wysokiej klasy
✔ Dobrej jakości panele
✔ Dotykowe, bezszelestne włączniki
✔ Zabudowa kuchenna wysoki standard 
Klimatyzacja
✔ Gustowne dobrane oświetlenie
✔ Tereny zielone (Łowisko Brzegi, Park Złocień, Lotnisko Modelarskie)
✔ Okolica sprzyjająca rekreacji
✔ Opcjonalny Garaż Podziemny
✔ Nowoczesne osiedle
Rękojmia od dewelopera

✅ NIERUCHOMOŚĆ:
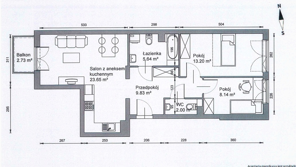
To nowoczesna, jasna przestrzeń o powierzchni 62,62 m²,
zaprojektowana z myślą o komforcie i elegancji. Wnętrze
wyróżnia się spójną, minimalistyczną estetyką – głębokie
zielenie, ciepłe brązy i subtelne oświetlenie, nadaje całości
przytulny, domowy, a jednocześnie nowoczesny charakter.

Mieszkanie składa się z:
✔ Salon z aneksem kuchennym i wyjściem na balkon – ekspozycja wschodnia
✔ Sypialnia 2 – ekspozycja wschodnia
✔ Sypialnia 3 – ekspozycja wschodnia
✔ Łazienka z prysznicem
✔ Pralnia (z przyłączem wody)
✔ Przedpokój
✔ Balkon
✔ Garaż podziemny (opcjonalnie)

✅  LOKALIZACJA:
Nowe osiedle, ustronna okolica, genialnie skomunikowana
cześć Krakowa. W pobliżu wszystko co potrzebne - sklepy, 
restauracje, tereny zielone, przystanki MPK, SKA i PKP, łatwy
dojazd do dróg szybkiego ruchu. 

✔ szkoła podstawowa
✔ przedszkole, żłobek
✔ place zabaw
✔ sklep spożywczy (ATUT, Biedronka, Żabka, Euro)
✔ stacja paliw
✔ gabinet dietetyki
✔ gabinet weterynaryjny
✔ gabinet kosmetyczny
✔ restauracja
✔ stacja PKP, SKA
✔ siłownia, kort tenisowy
✔ paintball, tor gokartowy
✔ Łowisko Brzegi, Lotnisko Modelarskie
✔ Parki
✔ łatwy dojazd do A4 i S7

✅ KOSZT:
✔ Cena nieruchomości: 948 000 PLN (mieszkanie wykończone)
✔ Miejsce postojowe podziemne: 50 000 PLN (zakup opcjonalny)
+ prowizja dla biura

✅ KONTAKT:

Czujesz VIBE? Zadzwoń! :)

Biuro Nieruchomości VIBEHOME
Gabriel Karelus (Polish, English, Spanish)
☎ +48 690 434 248
✉️ g.karelus@vibehome.com.pl

Aleksandra Syktus (Polish, Russian)
☎ +48 453 411 355
✉️ kontakt@vibehome.com.pl